




Nếu Anh Chị muốn đầu tư lãi vốn sau 1 vài năm hoặc xây luôn kinh doanh dòng tiền, thì nhất định đừng bỏ qua lô này:
Vị trí: Sát QL21 mở rộng 80m
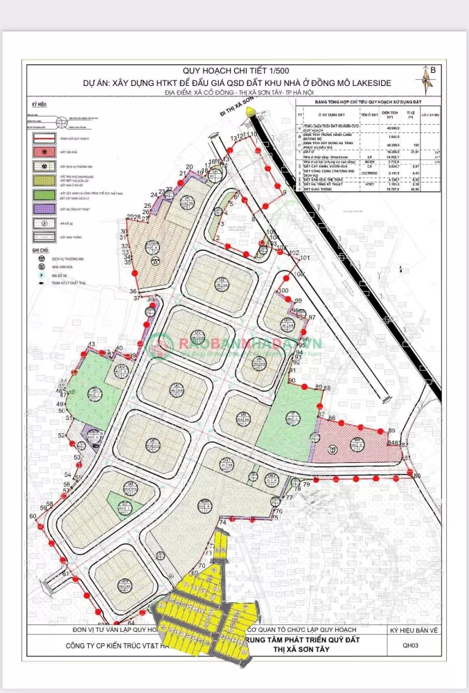
Cạnh đất đấu giá Đồng Mô Lakeside đã có quy hoạch chi tiết 1/500. Cách trường Cao đẳng Nghề CLC 300m.
Ngay vòng xuyến trục Hồ Tây Ba Vì giao với QL21
Pháp lý chuẩn chỉnh, được vay ngân hàng.
Sổ đỏ sẵn sàng, ưng là công chứng ngay trong ngày.
Liên hệ ngay e Phú: 0974166851 để đi xem thực tế ạ!